Retour

Firminy (42700)
Terrain à bâtir de 3200 m² à Firminy (Quartier de Chazeau) SUD/EST

  • à propos de ce
    bien

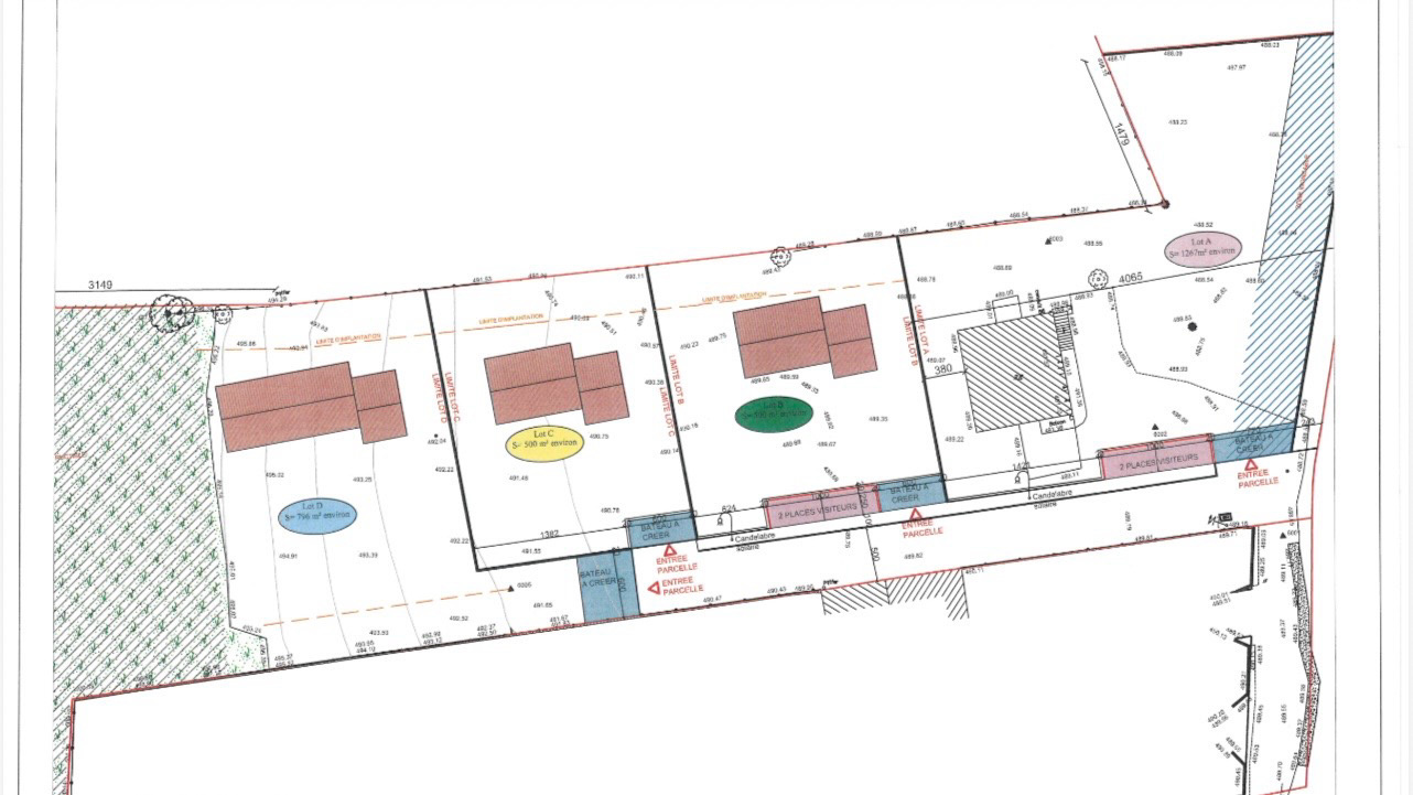
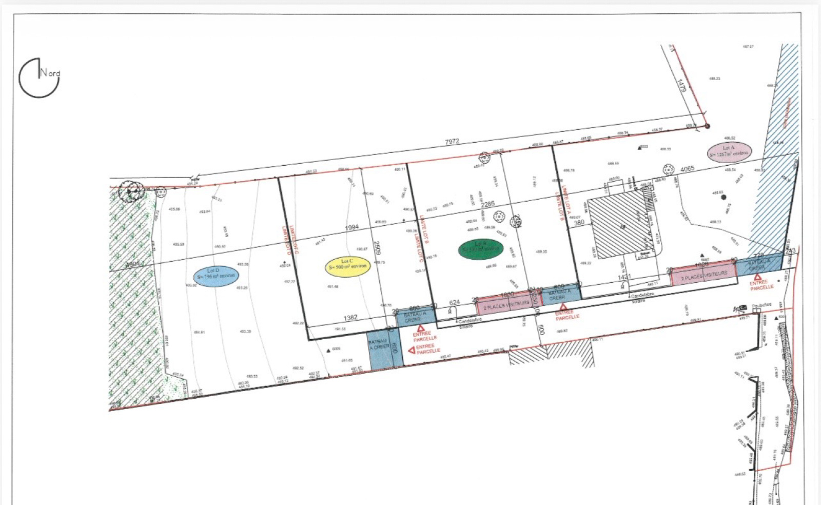
    Homie-Immobilier À vendre – Terrain à bâtir de 3200 m² à Firminy (Secteur de Chazeau) Situé dans le paisible quartier de Chazeau, sur la commune de Firminy, ce terrain de 3200 m² offre un cadre de vie idéal. Il se compose de : 1700 m² constructibles, parfait pour la réalisation de vos projets de construction. 1500 m² boisés non constructibles, apportant un charme naturel et un cadre verdoyant. Exposition Sud-Est, offrant une belle luminosité et un ensoleillement optimal. Un environnement calme et serein, idéal pour ceux qui recherchent la tranquillité. Permis de construire accepté pour la réalisation de 3 maisons. Ce terrain est une véritable opportunité pour un projet résidentiel de qualité dans un secteur recherché, tout en étant proche de toutes commodités. N’hésitez pas à nous contacter pour plus d'informations ou pour planifier une visite !
    • Prix
      110 000 €
    • Code postal
      42700
    • surface terrain
      3 200 m²
    • Vue
      sud est
    • Références
      45
  • Plus d'informations
    financières

    • Prix de vente
      110 000 €
    • Les honoraires d'agence seront intégralement à la charge du vendeur
       
  • la
    copropriété

    • Copropriété
      NON
  • Bilan
    énergétique

    DPE GES
    DPE ANCIENNE VERSION

Ce bien
m'intéresse

Nos outils