Andrézieux-Bouthéon (42160)
Appartement T4 neuf 98 m² avec terrasse à Andrézieux Bouthéon

  • à propos de ce
    bien

    Homie-IMMO : Laurent Guillaumond, ([Coordonnées masquées], vous propose :

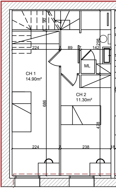
    Ce superbe appartement neuf en triplex de 98 m² offrant de beaux volumes et une configuration idéale pour une famille. Il se compose d'une pièce à vivre de 33m2, de trois chambres, dont une suite parentale, une seconde salle de bain, deux WC et une magnifique terrasse tropézienne de 13 m², parfaite pour profiter des beaux jours. Ce bien est proposé à la vente en plateau à 190 000 € ou entièrement fini à 260 000 €. Livraison prévue pour juillet 2026. Une opportunité rare à saisir pour personnaliser votre futur logement ou emménager dans un espace clé en main.

    Nous contacter pour toutes autres informations Votre conseiller joignable 6/7. I: . La présente annonce immobilière a été rédigée sous la responsabilité éditoriale de Mr Laurent Guillaumond, Agent Commercial mandataire en immobilier immatriculé au Registre Spécial des Agents Commerciaux (RSAC) du Tribunal de Commerce de SAINT ETIENNE sous le numéro 522 472 158. Référence annonce : 20 Date de réalisation du diagnostic : 21/02/2022 Les honoraires sont à la charge du vendeur

     

    • Prix
      190 000 €
    • Code postal
      42160
    • Surface habitable (m²)
      98 m²
    • Surface loi Carrez (m²)
      98 m²
    • Nombre de chambre(s)
      3
    • Nombre de pièces
      4
    • Etage
      1
    • Nombre de niveaux
      3
    • Ascenseur
      NON
    • Vue
      Dégagée
    • Références
      124
  • Plus d'informations
    financières

    • Prix de vente
      190 000 €
    • Les honoraires d'agence seront intégralement à la charge du vendeur
       
  • Plus de
    détails

    • Nb de salle de bains
      2
    • Cuisine
      Américaine
    • Mode de chauffage
      Climatisation
    • Type de chauffage
      TRAD_TYPE_CHAUFF_AIR_EAU
    • Format de chauffage
      Individuel
    • Interphone
      OUI
    • Visiophone
      OUI
    • Balcon
      NON
    • Terrasse
      OUI
    • Murs mitoyens
      2
    • Cave
      NON
    • Exposition
      Ouest
    • Année de construction
      2026
  • la
    copropriété

    • Copropriété
      OUI
    • nombre de lots
      5
    • plan de sauvegarde
      NON
  • Bilan
    énergétique

    DPE GES
    DPE ANCIENNE VERSION
    Coup de coeur

Ce bien
m'intéresse

Nos outils